Lokal w centrum Wrzeszcza

Lokal handlowy/usługowy na wynajem
11 939,00 PLN , Pow. 183 m2
Drukuj ofertę
Drukuj ofertę
Typ nieruchomości:
Komercyjny
Powierzchnia:
183 m2
Typ transakcji:
wynajem
Liczba pokoi:
7
Lokalizacja:
Gdańsk Wrzeszcz , Wajdeloty
Rok budowy:
1980
Piętro:
1 na 4
Numer oferty:
MH329895
Cena za m2:
65,24 PLN
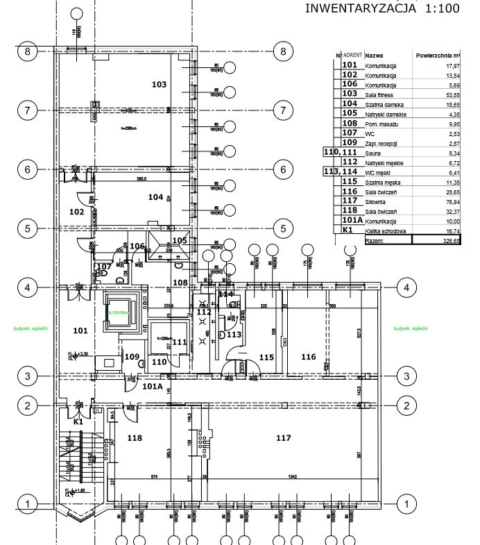
Idealny na klub fitness, siłownię, centrum rebalilitacji itp.
Powierzchnia lokalu podzielona jest na:
- duża salę główną,
-  mniejszą sale,
- łazienki z prysznicami,
- szatnie
Budynek jest wyposażony w windę

Wysokość pomieszczeń: 300cm

Lokal znajduje się we Wrzeszczu przy ulicy Wajdeloty.
Adres strony www: https:// NULL
Nieprawidłowy adres E-mail